1.1. Antecedentes 1.2. Emplazamiento 1.3. Objeto del proyecto 1.4. Autor del proyecto 1.5. Características del edificio 1.6. Actividades del edificio y colindantes 1.7. Elementos constructivos del local 1.8. Superficies del local 1.9. Obras de acondicionamiento 1.10. Consideraciones a tener en cuenta * Orden 21/2016 de 29 de diciembre sobre la regulación de los horarios de los establecimientos públicos para el año 2017. * Ley 14/2010 de 3 de diciembre, “Espectáculos públicos, Actividades recreativas y Establecimientos públicos” * Ley 15/1999 del 13 de diciembre “Protección de datos de carácter personal” * Decreto 39/2004 del 5 de Marzo, “Accesibilidad en la edificación de pública concurrencia y en el medio urbano”
2. REGLAMENTO TECNICO SANITARIO
2.1. Aseo 2.2. Resto de dependencias del local
3. MEMORIA AMBIENTAL
3.1. Proceso industrial 3.2. Contaminación atmosférica 3.2.1. Focos emisores de humos, vapores y polvos 3.2.2. Combustibles 3.3. Vertidos líquidos 3.4. Residuos 3.5. Medidas correctoras 3.5.1. Vibraciones 3.5.2. Contaminación atmosférica 3.5.3. Vertidos líquidos 3.5.4. Residuos 3.5.5. Olores 3.6. Instalación eléctrica. Prescripciones de carácter general 3.7. Equipo que se instala y potencia total
4. FICHAS DE CUMPLIMIENTO DEL DB-SUA. SEGURIDAD DE UTILIZACION
5. PROTECCIONES CONTRA INCENDIO
5.1. Condiciones del entorno 5.2. Número de personas que puedan ocupar la actividad 5.3. Vías de evacuación 5.4. Puertas de salida a la calle 5.5. Alumbrado de evacuación 5.6. Lugares en que deberá instalarse alumbrado de emergencia 5.7. Prescripción de los aparatos para alumbrado de emergencia 5.8. Condición de mantenimiento
6. CARGA TERMICA DEL LOCAL CON EL CÁLCULO DEL PODER CALORIFICO Y SUSTANCIAS COMBUSTIBLES
7. LISTADO DE NORMATIVA APLICABLE A LA REDACCIÓN DEL PROYECTO DE ACTIVIDAD
8. TRABAJOS DE ADAPTACION DEL LOCAL
9. DOCUMENTACION COMPLEMENTARIA AL PROYECTO * SOLICITUD DE CERTIFICADO DE COMPATIBILIDAD URBANISTICA
10. CONCLUSIONES FINALES
10.1. Calificación de la actividad 10.2. Conclusión II.
ANEJOS (13 pags. en word)
ANEJO I. JUSTIFICACION DEL CUMPLIMIENTO DEL DB-SI DE SEGURIDAD EN CASO DE INCENDIO DEL CODIGO TECNICO DE LA EDIFICACION
ANEJO II. JUSTIFICACION DEL CUMPLIMIENTO DE LA LEY 1/1998 DE 5 DE MAYO, DE ACCESIBILIDAD Y SUPRESION DE BARRERAS ARQUITECTONICAS ANEJO II. JUSTIFICACION DEL CUMPLIMIENTO DE LA NORMATIVA EN MATERIA DE EMISION DE RUIDOS AL EXTERIOR
III. PLANOS (6 planos en PDF)
PLANO 1 Situación según Vista aérea
PLANO 2 Referencia Catastral
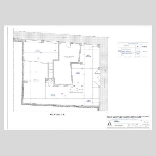
PLANO 3 Cotas y Superficies
PLANO 4 Distribución y mobiliario
PLANO 5 Protección contra Incendios
PLANO 6 Alzado y Sección A-B
*** Disponemos de más plantillas descargables sobre el tema, para editar y personalizar en tu proyecto, dentro de la categoría PROYECTOS DE ACTIVIDADES ***








googlereviews (propietario verificado) –
Ahorro de tiempo
Bastante completo, no nos daba tiempo y nos ha servido de mucha ayuda