Proyecto completo para la obtención de la licencia de actividad de un taller mecánico en una nave industrial sup 453 m2 (85 págs. en .docx y 6 en .dwg y pdf)
MEMORIA DESCRIPTIVA (85 PAGS EN .docx)
- ANTECEDENTES Y OBJETO DEL PROYECTO.
- DATOS DEL TITULAR DE LA ACTIVIDAD.
- DESCRIPCIÓN Y CLASIFICACIÓN DE LA ACTIVIDAD.
- SITUACIÓN DEL ESTABLECIMIENTO.
- CONDICIONES URBANÍSTICAS.
- REGLAMENTACIÓN Y DISPOSICIONES OFICIALES Y PARTICULARES.
- DESCRIPCIÓN Y CARACTERÍSTICAS DEL LOCAL. OBRAS DE ACONDICIONAMIENTO.
- MAQUINARIA Y EQUIPOS INSTALADOS.
- PERSONAL Y JORNADA LABORAL.
- INSTALACIONES Y SERVICIOS.
- INSTALACIONES HIGIÉNICO-SANITARIAS.
- ILUMINACIÓN.
- INSTALACIÓN ELÉCTRICA.
- INSTALACIÓN DE FONTANERÍA.
- INSTALACIÓN DE SANEAMIENTO.
- INSTALACIÓN DE AIRE COMPRIMIDO (RD 2060/2008).
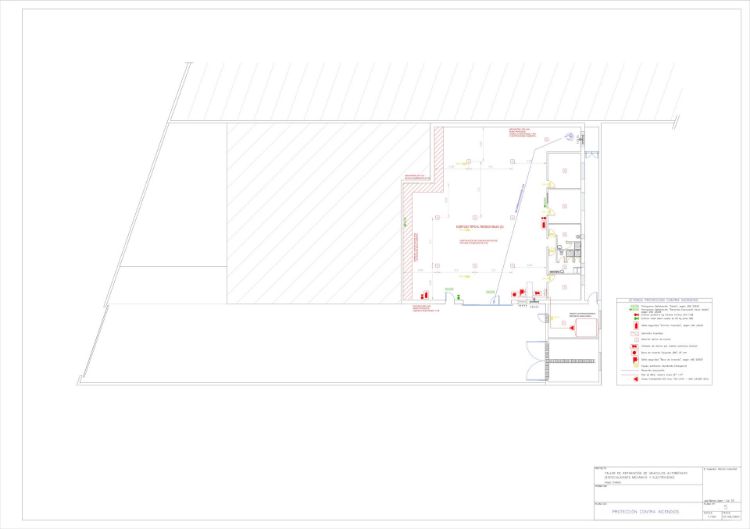
- SEGURIDAD CONTRA INCENDIOS (RD 2267/2004).
- CLASIFICACIÓN DEL ESTABLECIMIENTO.
- COMPATIBILIDAD REGLAMENTARIA.
- CONFIGURACIÓN Y UBICACIÓN CON RELACIÓN A SU ENTORNO.
- NIVEL DE RIESGO INTRÍNSECO.
- REQUISITOS CONSTRUCTIVOS. ESTABILIDAD, RESISTENCIA Y REACCIÓN AL FUEGO.
- EVACUACIÓN DEL ESTABLECIMIENTO INDUSTRIAL.
- ALMACENAMIENTOS.
- INSTALACIONES DE PROTECCIÓN CONTRA INCENDIOS.
- PROTECCIÓN DE LA SALUD Y LA SEGURIDAD DE LOS TRABAJADORES EXPUESTOS A LOS RIESGOS DERIVADOS DE ATMÓSFERAS EXPLOSIVAS EN EL LUGAR DE TRABAJO (RD 681/2003).
- OBLIGACIONES DEL EMPRESARIO.
- CLASIFICACIÓN DE ZONAS CON RIESGO DE INCENDIO Y EXPLOSIÓN DEBIDO A GASES, VAPORES O NIEBLAS INFLAMABLES (UNE-EN 60079-10-1).
- CLASIFICACIÓN DEL ESTABLECIMIENTO.
- GRADO DE ESCAPE.
- IDENTIFICACIÓN DE LAS SUSTANCIAS INFLAMABLES Y TASAS DE ESCAPE.
- TIPO DE ZONA.
- DISPONIBILIDAD DE LA VENTILACIÓN.
- EXTENSIÓN DE LA ZONA.
- VENTILACIÓN.
- GRADO DE DILUCIÓN.
- EVALUACIÓN DE LA VENTILACIÓN Y LA DILUCIÓN Y SU INFLUENCIA EN EL EMPLAZAMIENTO PELIGROSO.
- MEDIDAS CORRECTORAS.
- INCIDENCIAS SOBRE EL MEDIO AMBIENTE.
- ACCESIBILIDAD EN LA EDIFICACIÓN.
- CONCLUSIÓN.
PLANOS (6 PAGS EN .PDF)
El proyecto viene acompañado de otro ejemplo:
Proyecto completo para la obtención de la licencia de actividad de un taller mecánico en una nave industrial superfície 192 m2 (100 págs. en .docx y 10 en .dwg)
1.ENCARGO
1.2.Autor del proyecto
1.3.Emplazamiento del edificio
2.2.Superficies y distribución
2.3.Comunicación y accesos
4.2.Electricidad e iluminación
4.3.Protección contra incendios
- ANEXO I. MEMORIA AMBIENTAL
- ANEXO II.PROTECCIÓN CONTRA INCENDIOS
- ANEXO III. ACCESIBILIDAD
- ANEXO IV. DISPOSICIONES MÍNIMAS DE SEGURIDAD Y SALUD EN LUGARES DE TRABAJO
- ANEXO V. CÁLCULOS DE FONTANERÍA
- ANEXO VI. CÁLCULOS DE ELECTRICIDAD
- ANEXO VII. FICHA II Y TABLAS JUSTIFICATIVAS DE ACCESIBILIDAD
- ANEXO VIII. DOCUMENTACIÓN COMPLEMENTARIA
- Contrato de recogida de residuos
- Alta productor de residuos
- Contrato de arrendamiento
- 1. SITUACIÓN
- 2. EMPLAZAMIENTO
- 3. DISTRIBUCIÓN
- 4. PROTECCIÓN CONTRA INCENDIOS
- 5. FONTANERÍA
- 6. ELECTRICIDAD
- 7. ESQUEMA UNIFILAR
- 8. ACÚSTICA
- 9. ALZADO
- 10. ACCESIBILIDAD
*** Disponemos de más plantillas descargables sobre el tema, para editar y personalizar en tu proyecto, dentro de la categoría PROYECTOS DE ACTIVIDADES ***











googlereviews (propietario verificado) –
Instalaciones taller
Bastante bien, como los otros y contiene anexos donde hace más hincapié en las instalaciones
googlereviews (propietario verificado) –
Descarga inmediata y todo correcto
Descarga inmediata con la documentacion completa y clara como otros que me he descargado.